click to enable zoom
searching...
We didn't find any results
apri la mappa
View Roadmap Satellite Hybrid Terrain La mia Posizione Schermo intero

0 € to 5.600.000 €

More Search Options
Abbiamo trovato 0 immobili. Visualizza i risultati
Advanced Search

0 € to 5.600.000 €

More Search Options
abbiamo trovato 0 immobili
Your search results

NUOVA COSTRUZIONE PRONTA CONSEGNA – NO IVA – LAVINIO MARE “LE CASE DEL SOLE”

220.000 €
viale del Sole 38,
Aggiungi ai preferiti
764

Descrizione

 

NUOVA COSTRUZIONE PRONTA CONSEGNA – NO IVA

LAVINIO MARE “LE CASE DEL SOLE” – CLASSE ENERGETICA A 4 Le Case del Sole si inseriscono in un contesto residenziale, a circa 200 metri dalle spiagge ed in prossimità di Piazza Lavinia e della Riserva Naturale di Tor Caldara. – APPARTAMENTO NON CON PREDISPOSIZIONE MA CON IMPIANTI GIA’ INSTALLATI, FUNZIONANTI ED ENERGETICAMENTE AUTOSUFFICIENTI! – CON LA COIBENTAZIONE GARANTITA IN CLASSE ENERGETICA A4, SI HANNO CONSUMI ESTREMAMENTE RIDOTTI. – IMPIANTO FOTOVOLTAICO CON BATTERIA DI ACCUMULO. – IMPIANTO CALDO/FREDDO CANALIZZATO.

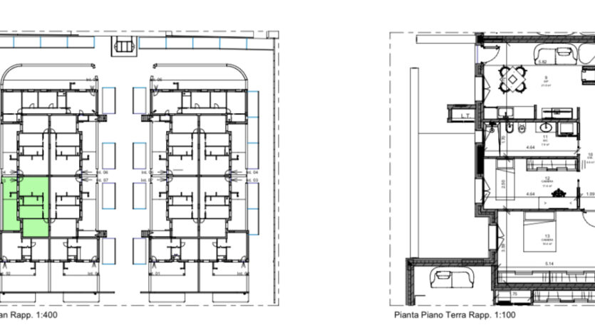
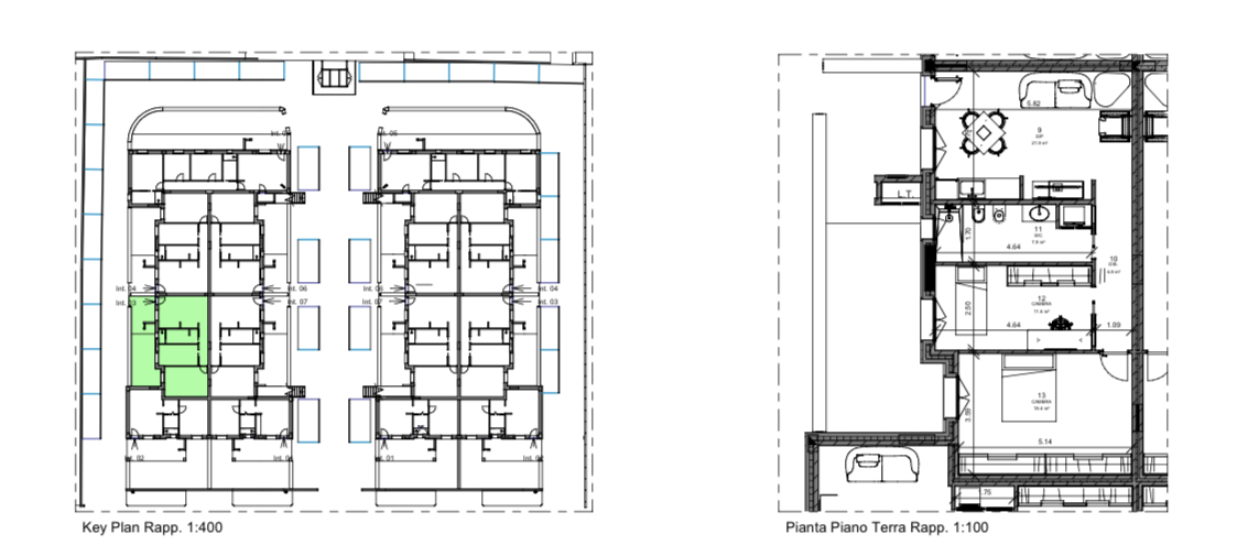
Appartamento interno A 3

composto da sala con angolo cottura, 2 camere da letto, 1 bagno con doccia, giardino pavimentato .

 

Possibilità di posto auto.

L’immobile è realizzato: – classe energetica A 4 – Impianto fotovoltaico autonomo con batteria di accumulo e controllo da remoto – impianti di condizionamento Viessmann caldo/freddo con controllo da remoto – struttura antisismica nel rispetto dei più rigidi parametri di legge – impianto fotovoltaico con batterie di accumulo – finitura esterna in cortina per solidità e forte tenuta nel tempo – pavimenti e rivestimenti Tuscania -Infissi Kömmerling brand leader in ricerca e tecnologia per un ottimale isolamento termico – acustico – ringhiere in acciaio inox – sanitari filo muro – cabina doccia in cristallo (molto curata nei dettagli strutturali ed estetici). – predisposizione allarme anti intrusione perimetrale.

La Tua Nuova Casa, costruita e pensata per Te, con i più alti standard di qualità, comfort, prestigio, relax. Un progetto dall’anima contemporanea: ° Architettura raffinata, pensata per chi sa scegliere con gusto ° Un’oasi prestigiosa ed elegante, in piena armonia con la natura ° Elevato comfort e prestazione energetiche elevate ° Impiantistica di ultimo livello per un servizio all’avanguardia ° Struttura in cemento armato e rivestimento in cortina Queste informazioni non costituiscono elemento contrattuale. Tutte le informazioni e riproduzioni contenute hanno valore puramente indicativo.

PER INFORMAZIONI CONTATTARE IL:

331-6381870

334-8512644

COLLALTI IMMOBILIARE DAL 1979

SEDE DI ANZIO – LAVINIO (RM), PIAZZA DEL CONSORZIO N. 8

 

Classe energetica A+

A+

A

B

C

D

E

F

G

H

Indirizzo: viale del Sole 38
Città:
Provincia:
Cap: 00042
Nazione: Italia
Apri in Google Maps
Codice Annuncio: 45652
Prezzo: 220.000 €
Dimensione: 82.00 m2
Property Lot Size: 26.00 m2
Stanze: 3
Camere da Letto: 2
Bagni: 1
Classe Energetica: A+
Anno di Costruzione: 2025

Immobili simili

Vendita

Nuovo a 200 metri dalle spiagge e da Piazza ...

300.000 €
NUOVA COSTRUZIONE – LE CASE DEL SOLE LAVINIO MARE “LE CASE DEL SOLE” – CLASSE ENERGETICA A [continua a leggere]
NUOVA COSTRUZIONE – LE CASE DEL SOLE LAVINIO MARE “LE CASE DEL SOLE” – CLASSE ENERGETICA A [continua a leggere]
32 102.00 m2scheda completa
Vendita

NUOVA COSTRUZIONE – a circa 200 metri ...

226.000 €
NUOVA COSTRUZIONE PRONTA CONSEGNA – NO IVA LAVINIO MARE “LE CASE DEL SOLE” – CLASSE ENERGETICA A [continua a leggere]
NUOVA COSTRUZIONE PRONTA CONSEGNA – NO IVA LAVINIO MARE “LE CASE DEL SOLE” – CLASSE ENERGETICA A [continua a leggere]
32 85.00 m2scheda completa
Vendita

NUOVA COSTRUZIONE PRONTA CONSEGNA – a due pa...

185.000 €
NUOVA COSTRUZIONE PRONTA CONSEGNA – NO IVA LAVINIO MARE “LE CASE DEL SOLE” – CLASSE ENERGETICA A [continua a leggere]
NUOVA COSTRUZIONE PRONTA CONSEGNA – NO IVA LAVINIO MARE “LE CASE DEL SOLE” – CLASSE ENERGETICA A [continua a leggere]
11 52.00 m2scheda completa
Vendita

LAVINIO MARE “LE CASE DEL SOLE” ...

202.000 €
LAVINIO MARE “LE CASE DEL SOLE” PRONTA CONSEGNA – NO IVA Le Case del Sole si inseriscono in un contesto [continua a leggere]
LAVINIO MARE “LE CASE DEL SOLE” PRONTA CONSEGNA – NO IVA Le Case del Sole si inseriscono in un contesto [continua a leggere]
21 75.00 m2scheda completa

Scrivimi

Vuoi vedere questa casa?

Compare Listings